Beschreibung
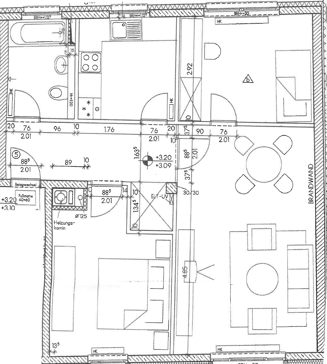
Diese attraktive, ca. 73 m² große Wohnung befindet sich im ersten Obergeschoss eines gepflegten Mehrparteienhauses und wird derzeit umfassend renoviert. Nach Abschluss der Arbeiten präsentiert sich die Wohnung in einem modernen und zeitgemäßen Zustand und bietet ein angenehmes Wohnambiente mit durchdachter Raumaufteilung. Das großzügige Wohnzimmer überzeugt durch seine offene Gestaltung und eine besonders gute Belichtung, die für eine freundliche und einladende Atmosphäre sorgt. Große Fensterflächen lassen viel Tageslicht herein und schaffen einen hellen Lebensmittelpunkt. Die Wohnung verfügt über zwei helle und freundlich gestaltete Schlafzimmer, die vielfältige Nutzungsmöglichkeiten bieten – ideal als Schlaf-, Kinder- oder Arbeitszimmer. Das modernisierte Badezimmer ist funktional und zeitgemäß ausgestattet und verfügt über eine begehbare Dusche, ein WC sowie ein Waschbecken. Im Küchenbereich wird derzeit eine neue Einbauküche mit sämtlichen Elektrogeräten installiert, sodass zukünftige Mieter von einer sofort nutzbaren und modernen Küchenausstattung profitieren. Die Miete der Küche kostet im Monat 98,50 EUR. Die Kombination aus laufender Renovierung, guter Raumaufteilung und der Lage innerhalb eines gepflegten Mehrparteienhauses macht diese Wohnung besonders attraktiv für Mieter, die Wert auf modernes Wohnen in angenehmer Umgebung legen. UPDATE: Die Wohnung ist mittlerweile fertig saniert. Das Badezimmer hat große hellgraue Fliesen und eine bodentiefe Dusche erhalten. Ebenso wurde die Küche eingebaut.Ausstattung
– Renovierter Zustand – 3 Zimmer Wohnung – Zentrale Lage – Begehbare Dusche – Erster Stock – Lichtdurchflutete Atmosphäre – Eigener KellerraumLage
Die Wohnung befindet sich in einer ruhigen und gepflegten Wohnlage innerhalb eines gewachsenen Wohnumfeldes. Die Umgebung ist geprägt von Mehrfamilienhäusern sowie einer angenehmen Nachbarschaftsstruktur und bietet eine gute Kombination aus ruhigem Wohnen und einer praktischen Anbindung an die Infrastruktur des täglichen Lebens. Einkaufsmöglichkeiten, Supermärkte, Bäckereien sowie weitere Einrichtungen des täglichen Bedarfs sind in kurzer Zeit erreichbar. Auch Ärzte, Apotheken sowie gastronomische Angebote befinden sich in der näheren Umgebung. Die Anbindung an den öffentlichen Nahverkehr ist gut ausgebaut, sodass umliegende Stadtteile und zentrale Bereiche schnell erreicht werden können. Darüber hinaus bietet die Lage eine gute Verkehrsanbindung für Pendler, sodass sowohl innerstädtische Ziele als auch überregionale Verbindungen bequem erreichbar sind. Grünflächen und Naherholungsmöglichkeiten in der Umgebung laden zu Spaziergängen, sportlichen Aktivitäten und zur Erholung im Freien ein. Insgesamt verbindet die Lage eine angenehme Wohnatmosphäre mit einer praktischen Infrastruktur und macht die Wohnung sowohl für Singles, Paare als auch kleine Familien attraktiv.Sie sehen gerade einen Platzhalterinhalt von Google Maps. Um auf den eigentlichen Inhalt zuzugreifen, klicken Sie auf die Schaltfläche unten. Bitte beachten Sie, dass dabei Daten an Drittanbieter weitergegeben werden.
Mehr InformationenMit unserem Service-Bereich halten wir Sie immer auf dem neuesten Stand.
Seit vielen Jahren sind wir die Experten für Immobilien. Sprechen Sie uns an.
Sie sehen gerade einen Platzhalterinhalt von Vimeo. Um auf den eigentlichen Inhalt zuzugreifen, klicken Sie auf die Schaltfläche unten. Bitte beachten Sie, dass dabei Daten an Drittanbieter weitergegeben werden.
Mehr InformationenSie sehen gerade einen Platzhalterinhalt von YouTube. Um auf den eigentlichen Inhalt zuzugreifen, klicken Sie auf die Schaltfläche unten. Bitte beachten Sie, dass dabei Daten an Drittanbieter weitergegeben werden.
Mehr InformationenSie müssen den Inhalt von reCAPTCHA laden, um das Formular abzuschicken. Bitte beachten Sie, dass dabei Daten mit Drittanbietern ausgetauscht werden.
Mehr InformationenSie sehen gerade einen Platzhalterinhalt von Google Maps. Um auf den eigentlichen Inhalt zuzugreifen, klicken Sie auf die Schaltfläche unten. Bitte beachten Sie, dass dabei Daten an Drittanbieter weitergegeben werden.
Mehr InformationenSie sehen gerade einen Platzhalterinhalt von Mapbox. Um auf den eigentlichen Inhalt zuzugreifen, klicken Sie auf die Schaltfläche unten. Bitte beachten Sie, dass dabei Daten an Drittanbieter weitergegeben werden.
Mehr InformationenSie sehen gerade einen Platzhalterinhalt von OpenStreetMap. Um auf den eigentlichen Inhalt zuzugreifen, klicken Sie auf die Schaltfläche unten. Bitte beachten Sie, dass dabei Daten an Drittanbieter weitergegeben werden.
Mehr Informationen