Beschreibung
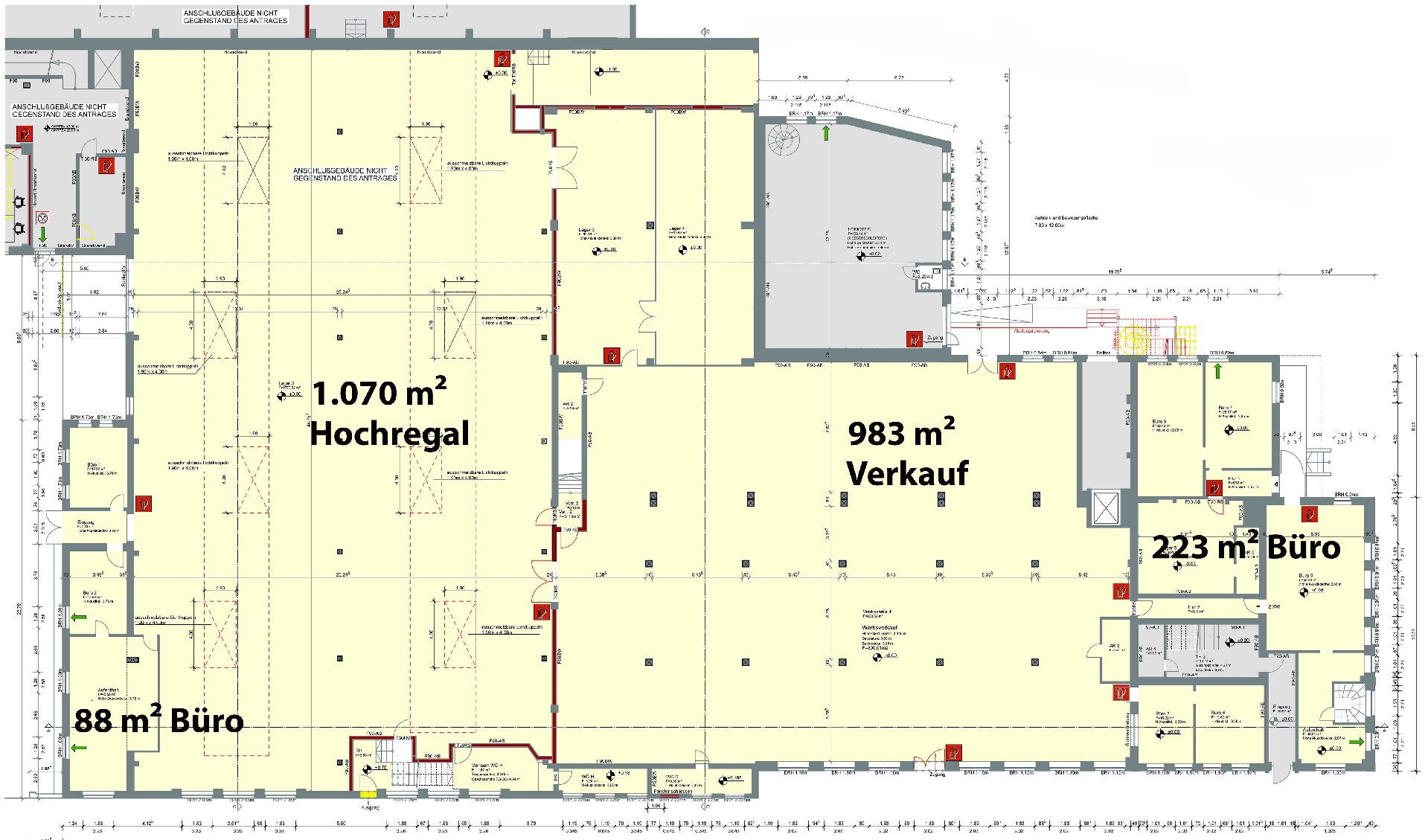
Das Objekt wird heute als Verwaltung, Lager und zum Verkauf von Gartenmöbeln genutzt. 1.000 m² der Fläche verfügen über eine Höhe von 5,30 6,00 Metern und können als Lager oder Produktionsfläche genutzt werden. Zugänglich ist diese Fläche über zwei Rolltore, sowie über die Lagerverwaltung. Diese verfügt über einen eigenen Eingang und erstreckt sich über ca. 88 m² moderne Bürofläche. Der zweite Gebäudeabschnitt hat ebenfalls ca. 1.000 m² Fläche. Diese ist mit ca. 3,50 m etwas niedriger und eignet sich perfekt für die Präsentation und Verkauf Ihrer Ware. Natürlich ist hier auch eine Produktion möglich. Dieser Bereich ist über eine Rampe sowie einen Eingang für Puplikumsverkehr erschlossen. Die anschließenden 233 m² Bürofläche runden das Gesamtangebot ab. Diese sind ebenfalls sehr modern und hell gestaltet und verfügen über heutige Technikstandards.Lage
Das Gewerbeobjekt befindet sich auf dem ehemaligen Gelände des Stahlwerk Unna an der Massener Straße/Am Büddenberg in Unna. Die Verkehrsanbindung ist als optimal einzustufen. In direkter Nachbarschaft liegt das Möbelhaus Zurbrüggen, der Baumarkt Globus, ein Rewemarkt sowie das Holzland Beese. Diese Nachbarn versprechen ein hohes Verkehrsaufkommen auch Ihrer zukunftigen Kunden. In nur wenigen Minuten gelangen Sie auf die B1 sowie auf die A1 und A2. Der öffentliche Personennahverkehr ist ebenfalls nur wenigen Gehminuten von der Immobilie entfernt. Parkplätze sind direkt an der Immobilie vorhanden.Sie sehen gerade einen Platzhalterinhalt von Google Maps. Um auf den eigentlichen Inhalt zuzugreifen, klicken Sie auf die Schaltfläche unten. Bitte beachten Sie, dass dabei Daten an Drittanbieter weitergegeben werden.
Mehr InformationenMit unserem Service-Bereich halten wir Sie immer auf dem neuesten Stand.
Seit vielen Jahren sind wir die Experten für Immobilien. Sprechen Sie uns an.
Sie sehen gerade einen Platzhalterinhalt von Vimeo. Um auf den eigentlichen Inhalt zuzugreifen, klicken Sie auf die Schaltfläche unten. Bitte beachten Sie, dass dabei Daten an Drittanbieter weitergegeben werden.
Mehr InformationenSie sehen gerade einen Platzhalterinhalt von YouTube. Um auf den eigentlichen Inhalt zuzugreifen, klicken Sie auf die Schaltfläche unten. Bitte beachten Sie, dass dabei Daten an Drittanbieter weitergegeben werden.
Mehr InformationenSie müssen den Inhalt von reCAPTCHA laden, um das Formular abzuschicken. Bitte beachten Sie, dass dabei Daten mit Drittanbietern ausgetauscht werden.
Mehr InformationenSie sehen gerade einen Platzhalterinhalt von Google Maps. Um auf den eigentlichen Inhalt zuzugreifen, klicken Sie auf die Schaltfläche unten. Bitte beachten Sie, dass dabei Daten an Drittanbieter weitergegeben werden.
Mehr InformationenSie sehen gerade einen Platzhalterinhalt von Mapbox. Um auf den eigentlichen Inhalt zuzugreifen, klicken Sie auf die Schaltfläche unten. Bitte beachten Sie, dass dabei Daten an Drittanbieter weitergegeben werden.
Mehr InformationenSie sehen gerade einen Platzhalterinhalt von OpenStreetMap. Um auf den eigentlichen Inhalt zuzugreifen, klicken Sie auf die Schaltfläche unten. Bitte beachten Sie, dass dabei Daten an Drittanbieter weitergegeben werden.
Mehr Informationen